공간설계 및 시공 / 도면화 / 3D 모델링 관련 작업 문의 바랍니다.


기본가격
30,000 원
기본작업일
3 일
진행중
0
서비스 평점
(-)

 추가옵션 ( 3 옵션 )

기본가격 :
30,000 원
작업일 :
0
추가 가격 :

서비스 상세정보

기본가격

30,000

상세내용

안녕하세요

실내선축 전공 후 실무 중인 젋은 프리랜서 팀,

ODDSTAFF 입니다.

젊은 감각으로 공간 관련 작업을 도와드립니다.

공간설계 및 시공 / 단순 도면화 작업 / 3D-modeling 작업 가능합니다.

1. 공간설계 / 시공 – 견적문의
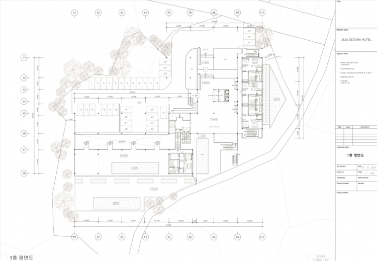
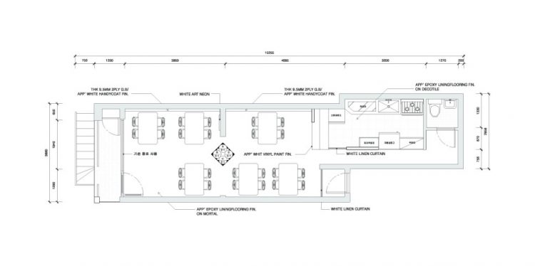
2. 단순 도면화 작업 : 20평 이하의 1개층 도면 – 30,000원 (그 외 사항 문의)
3. 3D-modeliong : 20평 이하의 1개층 장당 50,000 (퀄에 따른 가격 상이 / 견적 문의)

포트폴리오는 www.oddstudio.co.kr에서 확인 부탁드립니다.

감사합니다.


상세이미지

  • 공간설계 및 시공 / 도면화 / 3D 모델링 관련 작업 문의 바랍니다.-이미지
  • 공간설계 및 시공 / 도면화 / 3D 모델링 관련 작업 문의 바랍니다.-이미지
  • 공간설계 및 시공 / 도면화 / 3D 모델링 관련 작업 문의 바랍니다.-이미지
  • 공간설계 및 시공 / 도면화 / 3D 모델링 관련 작업 문의 바랍니다.-이미지
  • 공간설계 및 시공 / 도면화 / 3D 모델링 관련 작업 문의 바랍니다.-이미지
  • 공간설계 및 시공 / 도면화 / 3D 모델링 관련 작업 문의 바랍니다.-이미지
  • 공간설계 및 시공 / 도면화 / 3D 모델링 관련 작업 문의 바랍니다.-이미지
  • 공간설계 및 시공 / 도면화 / 3D 모델링 관련 작업 문의 바랍니다.-이미지
  • 공간설계 및 시공 / 도면화 / 3D 모델링 관련 작업 문의 바랍니다.-이미지
  • 공간설계 및 시공 / 도면화 / 3D 모델링 관련 작업 문의 바랍니다.-이미지
  • 공간설계 및 시공 / 도면화 / 3D 모델링 관련 작업 문의 바랍니다.-이미지
  • 공간설계 및 시공 / 도면화 / 3D 모델링 관련 작업 문의 바랍니다.-이미지
  • 공간설계 및 시공 / 도면화 / 3D 모델링 관련 작업 문의 바랍니다.-이미지
  • 공간설계 및 시공 / 도면화 / 3D 모델링 관련 작업 문의 바랍니다.-이미지
  • 공간설계 및 시공 / 도면화 / 3D 모델링 관련 작업 문의 바랍니다.-이미지
  • 공간설계 및 시공 / 도면화 / 3D 모델링 관련 작업 문의 바랍니다.-이미지
  • 공간설계 및 시공 / 도면화 / 3D 모델링 관련 작업 문의 바랍니다.-이미지
  • 공간설계 및 시공 / 도면화 / 3D 모델링 관련 작업 문의 바랍니다.-이미지
  • 공간설계 및 시공 / 도면화 / 3D 모델링 관련 작업 문의 바랍니다.-이미지
0개의 평가

후기

젊은 공간디자이너 팀 재밌고, 성실하게 일하는 ODDSTAFF 입니다.
더보기
디자이너 정보
총 작업
신규
만족도
신규
평균응답
아직몰라요
연락처
0105*******
oddstaff@naver.com
연락가능시간
( 월,화,수,목,금,토 ) 오전 10시 ~ 오후 16시

디자이너의 인증정보가 존재하지 않습니다.

 추가옵션 ( 3 옵션 )